Strona korzysta z plików cookies w celu realizacji usług - korzystanie z serwisu oznacza ich akceptację. Możesz to zmienić w ustawieniach swojej przeglądarki.
CaloscGora

Ogłoszenia Lublin

Mieszkania, Praca, Ślub, Usługi

Lubliniak.com.pl - witamy

Nieruchomości - Lublin i okolice

Dodano:2012-01-28
Cena: 12 zł
Miejsce: Lublin i okolice

Przy kontakcie powołaj się na serwis Lubliniak.com.pl

Telefon:501362363

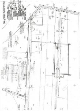
SUPER TANIO DZIAŁKI BUDOWLANE NAD BUGIEM

Sprzedam działki budowlane- rekreacyjne - 4 sztuki, z drogą dojazdową. Każda działaka po 3465 m.kw- plus udział w drodze dojazdowej- z warunkami zabudowy- /dom z poddaszem użytkowym, domek letniskowy, budynek gospodarczy, szambo, ogrodzenie/ w Dorohusku nad samym Bugiem/ od pierwszej działki do rzeki Bug – 50 metrów- do tzw. Burzyska- małe jeziorko połączone z Bugiem – 10 metrów/. Teren całkowicie nie zalewowy- teren kilka metrów wyżej od lustra wody. Piękna, czysta, spokojna okolica-
do miasteczka ok 1 km. Istnieje możliwość podziału każdej działki na trzy mniejsze. Prąd w granicy działek. Cena do niewielkiej negocjacji. UWAGA! CENA DOTYCZY 1 metra kwadratowego działki i obowiązuje przy zakupie wszystkichdzialek, tj. 16000 metrów kw.
Działki znajduja sie na terenie NATURA 2000. Posiadam wszystkie dokumenty łącznie z Decyzjami o warunkach zabudowy.


Kliknij by powiększyć


Reklama
Wypożyczalnia samochodów Lublin
Serwisy Partnerskie
Pomocnik studenta Nowysącz.biz Usługi Lublin - Twoj-Lublin.pl
 

Ogłoszenia Lublin

 
CaloscDol